- Woonoppervlakte
- Circa 172 m²
- Perceeloppervlakte
- Circa 678 m²
- Bouwjaar
- Gebouwd in 1965
- Aantal kamers
- 6 kamers (5 slaapkamers)
Vrijstaand wonen met ruimte, karakter en eindeloze mogelijkheden.
In een geliefde woonwijk nabij het centrum van Didam staat deze karakteristieke en sfeervolle vrijstaande woning op een royaal perceel van 678 m².
Een woning met ruimte, privacy, een fijne tuin rondom en volop mogelijkheden om hier iets heel bijzonders van te maken.
Marsweg 3 is zo’n huis waarbij je meteen voelt dat de basis klopt. De ligging is fijn, het perceel is ruim, de woning heeft karakter en de indeling biedt verrassend veel mogelijkheden. Tegelijkertijd vraagt de woning om aandacht, liefde en modernisering. Juist daarin ligt de kans: hier kun je een royaal vrijstaand woonhuis volledig naar eigen smaak creëren.
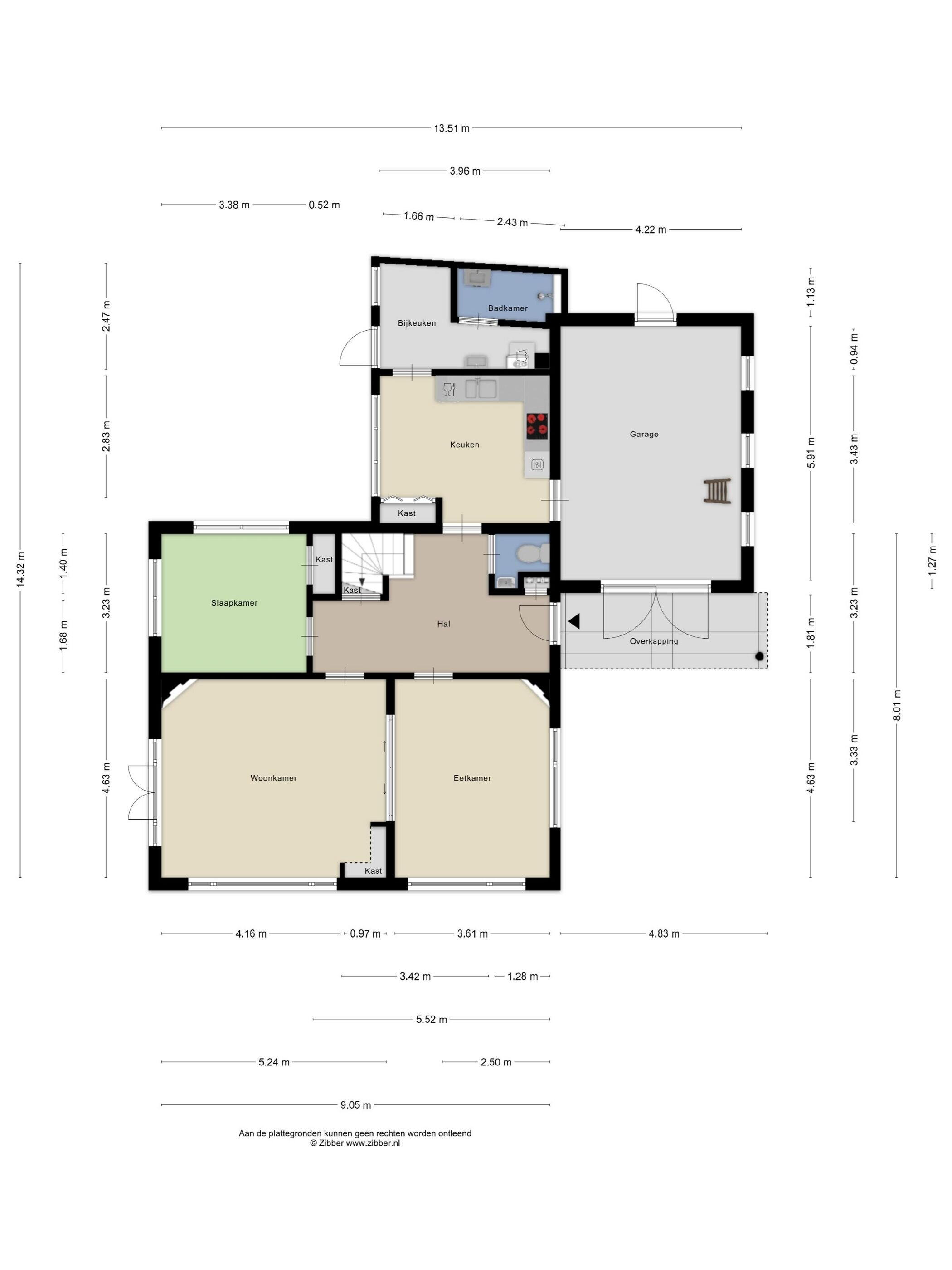
De woning beschikt over circa 172 m² woonoppervlakte en biedt nu al veel leefruimte. Een belangrijk pluspunt is dat de woning in de basis al levensloopbestendig is ingedeeld: zowel een slaapkamer als een badkamer bevinden zich op de begane grond. Daarmee is gelijkvloers wonen hier nu al mogelijk. Net als de rest van de woning zijn deze ruimtes gedateerd en toe aan modernisering, maar de indeling biedt een sterke basis om hier een comfortabele en toekomstbestendige woonoplossing van te maken. Uiteraard is de verdere invulling afhankelijk van de gewenste indeling, vergunningen en bouwkundige mogelijkheden.
Ook de overige ruimtes maken deze woning bijzonder veelzijdig. De grote garage biedt volop ruimte voor auto’s, fietsen, opslag, een werkplaats of hobbyruimte. Boven de garage bevindt zich een ruime bergzolder en ook de zolder van de woning zelf biedt veel potentie. Door hier een vaste trap naar toe te maken en eventueel daglicht te realiseren, is zelfs een volledige extra woonverdieping denkbaar. Daarmee ontstaat er ruimte voor extra slaapkamers, een werkkamer, speelzolder, atelier, praktijkruimte of luxe master bedroom. Juist die combinatie van woonruimte, garage, bergzolder en uitbreidingsmogelijkheden maakt dit huis zo interessant voor kopers die ruimte zoeken en vooruit durven te denken.
De woning is aan de buitenzijde grotendeels netjes onderhouden en grotendeels voorzien van dubbel glas. Binnen is er volop ruimte om te moderniseren, opnieuw in te delen en de woning naar het wooncomfort van nu te brengen. De artist impressions geven alvast een prachtige indruk van wat hier mogelijk is. Met de juiste visie ontstaat hier een stijlvol, royaal en eigentijds woonhuis met allure. Een echt paleisje op een prachtige plek in Didam.
De tuin rondom is een waar verlengstuk van de woning. De vrij gelegen achtertuin op het zonnige zuidwesten biedt volop privacy en alle ruimte voor een groot terras, een verzorgd gazon, sierlijke borders of juist een heerlijke gezinstuin. Hier geniet je van rust, zon en ruimte. Aan de achterzijde bevindt zich bovendien een deur richting het dak van de garage, waardoor ook een royaal dakterras tot de mogelijkheden behoort. Een heerlijke plek voor een kop koffie, een borrel aan het einde van de dag of gewoon een rustig moment voor jezelf.
De ligging is bijzonder aantrekkelijk. Je woont hier rustig en ruim, maar toch nabij het centrum van Didam. Winkels, scholen, zorgvoorzieningen en het NS station bevinden zich op loop of fietsafstand. Sportliefhebbers kunnen terecht bij tennis en padelbanen, voetbalvelden en fitnessclubs in de nabije omgeving. Voor wie graag de natuur opzoekt, liggen de Nevelhorst en de uitgestrekte Montferlandse bossen binnen handbereik.
Ook de bereikbaarheid is uitstekend. Didam ligt gunstig ten opzichte van Arnhem, Doetinchem en Nijmegen en via de A18, A12 en A3 zijn omliggende steden en Duitsland goed bereikbaar. Daarmee combineert deze woning de rust en ruimte van vrijstaand wonen met de praktische voordelen van een centrale ligging.
Marsweg 3 is geen standaard woning. Dit is een huis voor iemand met visie. Voor iemand die door de huidige staat heen kan kijken en ziet hoeveel kwaliteit, ruimte en potentie hier aanwezig is. Een woning die aandacht nodig heeft, maar daar enorm veel voor teruggeeft.
Ben jij op zoek naar een royaal vrijstaand woonhuis op een geliefde plek in Didam, met een groot perceel, een grote garage, veel privacy en volop mogelijkheden om jouw eigen woonwensen te realiseren? Dan is Marsweg 3 absoluut het bekijken waard.
Let op: de woning wordt verkocht met een as is, where is clausule. Dat betekent dat koper rekening dient te houden met de huidige staat van de woning en zelf goed onderzoek dient te doen naar onder andere de bouwkundige en juridische situatie. Juist voor de koper die mogelijkheden ziet, biedt deze woning een prachtige kans. Lees de volledige omschrijving
Overdracht
- Vraagprijs
- € 648.000 k.k.
- Status
- Beschikbaar
- Aanvaarding
- In overleg
Bouw
- Object type
- Eengezinswoning, vrijstaande woning
- Soort bouw
- Bestaande bouw
- Bouwjaar
- 1965
Oppervlakte en inhoud
- Woonoppervlakte
- 172 m²
- Perceeloppervlakte
- 678 m²
- Inhoud
- 895 m³
- Gebouwgeb. buitenruimte
- 34 m²
Indeling
- Aantal kamers
- 6 kamers (5 slaapkamers)
- Aantal badkamers
- 2 badkamers en 1 apart toilet
- Aantal woonlagen
- 2 woonlagen en een zolder
Energie
- Energielabel
- E
Buitenruimte
- Tuin
- Achtertuin
Garage
- Soort garage
- Aangebouwde stenen garage
- Capaciteit
- 1 auto
- Voorzieningen
- Elektra
Parkeergelegenheid
- Soort parkeergelegenheid
- Op eigen terrein
Energieverbruik in Didam
Energielabel deze woning
Energielabel E
Publicatie energielabel:
Stroomverbruik per jaar
(Gemiddelde vrijstaande woning in Didam)
Gasverbruik per jaar
(Gemiddelde vrijstaande woning in Didam)
* Cijfers zijn afkomstig van het CBS en bedoeld als indicatie en kunnen verschillen voor deze woning
Indicatie hypotheeklasten
Eigen inleg:
Spaargeld / overwaarde
Rente:
Laagste 10-jaars rente
Laagste 10-jaars rente
2,78% - Centraal Beheer - NHG
3,04% - Centraal Beheer - 80%
Laagste 20-jaars rente
3,29% - Centraal Beheer - NHG
3,52% - Centraal Beheer - 80%
Laagste 30-jaars rente
3,41% - Centraal Beheer - NHG
3,7% - Argenta - 80%
Hypotheek:
Bruto maandlasten: € 0 p/m
Netto maandlasten: € 0 p/m
Hoe berekenen we dit?
Het rentepercentage is gebaseerd op de laagste 10 jaars vaste rente voor één hypotheekdeel. De vermelde rente (3.04% zonder NHG) is gecontroleerd op 29-04-2026. Deze berekening is gebaseerd op een annuïteitenhypotheek die volledig wordt afgelost, waarbij de maandlasten gedurende de gehele looptijd gelijk blijven. De werkelijke rente en netto maandlasten kunnen variëren, afhankelijk van uw persoonlijke situatie en de hypotheekverstrekker. Raadpleeg een financieel adviseur voor een nauwkeurige berekening en advies. Aan deze berekening kunnen geen rechten worden ontleend; het dient enkel als indicatie.
Documentatie
Kadastrale kaart
Leefomgeving
Plattegronden PDF
WOZ waarderapport
Brochure
BAG uittreksel
Bezoek onze website
Bezichtiging
Bod uitbrengen
Waardebepaling
Zoekopdracht
Alles downloaden
Zonnegrenzen bekijken
Inwoners in Didam
Cijfers voor postcodegebied 6941
- Totaal aantal inwoners
- 4765 inwoners
- Mannen
- 50%
- Vrouwen
- 50%
Inwoners in Didam
Cijfers voor postcodegebied 6941
- tot 15 jaar
- 14%
- 15 tot 25 jaar
- 12%
- 25 tot 35 jaar
- 18%
- 45 tot 65 jaar
- 31%
- 65 en ouder
- 25%
Huishoudens in Didam
Cijfers voor postcodegebied 6941
- Eenpersoons zonder kinderen
- 25%
- Meerpersoons zonder kinderen
- 38%
- Huishoudens zonder kinderen
- 63%
Huishoudens in Didam
Cijfers voor postcodegebied 6941
- Huishoudens met één kind
- 7%
- Huishoudens met meerdere kinderen
- 30%
- Huishoudens met kinderen
- 37%
Woningen in Didam
Cijfers voor postcodegebied 6941
- Woningen voor 1945
- 11%
- Woningen tussen 1945 en 1965
- 13%
- Woningen tussen 1965 en 1975
- 24%
- Woningen tussen 1975 en 1985
- 34%
- Woningen tussen 1985 en 1995
- 4%
Woningen in Didam
Cijfers voor postcodegebied 6941
- Woningen tussen 1995 en 2005
- 5%
- Woningen tussen 2005 en 2015
- 9%
- Woningen na 2015
- 1%
- Huurwoningen
- 30%
- Koopwoningen
- 70%
Overige in Didam
Cijfers voor postcodegebied 6941
- Gemiddelde WOZ waarde
- € 232.000,-
- Personen onder de 65 met uitkering
- 7%
Overige in Didam
Cijfers voor postcodegebied 6941
- Adressen per km²
- 886
- Stedelijkheid (schaal 1 op 5)
- 40%
Wij helpen u graag verder!
Uw woning is een plek met betekenis. Bij het kopen, verkopen of verhuren van een woning zoekt u een makelaar die dat begrijpt, een makelaar die deskundig is en een creatieve, vernieuwende en effectieve aanpak toepast bij het vinden van uw droomhuis, het verkopen of verhuren van uw woning.
Wij hebben door onze jarenlange ervaring in de vastgoedbranche een uitgebreide kennis en kunnen u van dienst zijn in de regio Arnhem, Liemers en de Achterhoek!
Nieuwste reviews
-
Golden Delicious 97
Kim is super makelaar! Heel fijn geholpen en staat altijd voor me klaar. Heel duidelijke uitleg en begeleiding. Punctueel en alles op tijd.
-
C.W.S.
Waardeloze organisatie. Hebben niet het fatsoen te reageren als je reageert op een woning en/of een mail stuurt. Blijkbaar gaat het te goed
-
Poststraat 35
Het kontakt met Koopstek (Kim de Kievit) liep prettig en soepel.De zaak werd voortvarend ter hand genomen.Strategie was duidelijk en goed on...